Get the latest updates on new products and upcoming sales
Got just plans. Did not start yet ...
BR
Janek
Amazing customer service, helped me out right away and gave advice on all questions I asked. Plans look great, and extremely easy to read. Will definitely be back for more plans as I go.
Excellent quality and craftsmanship. Exactly what I was looking for. These are heavy duty and can be easily welded to any curved type door
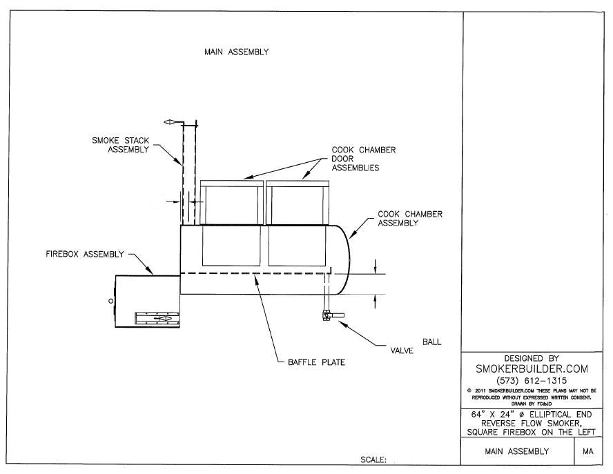
Would like to print bigger. Went to 11x17 and didn't work very well. Would like rfi's answered. Still waiting on last one. Will start building in a. Couple weeks and drawings look pretty simple and the cad file was nice
Works great. Quality is awesome