Get the latest updates on new products and upcoming sales
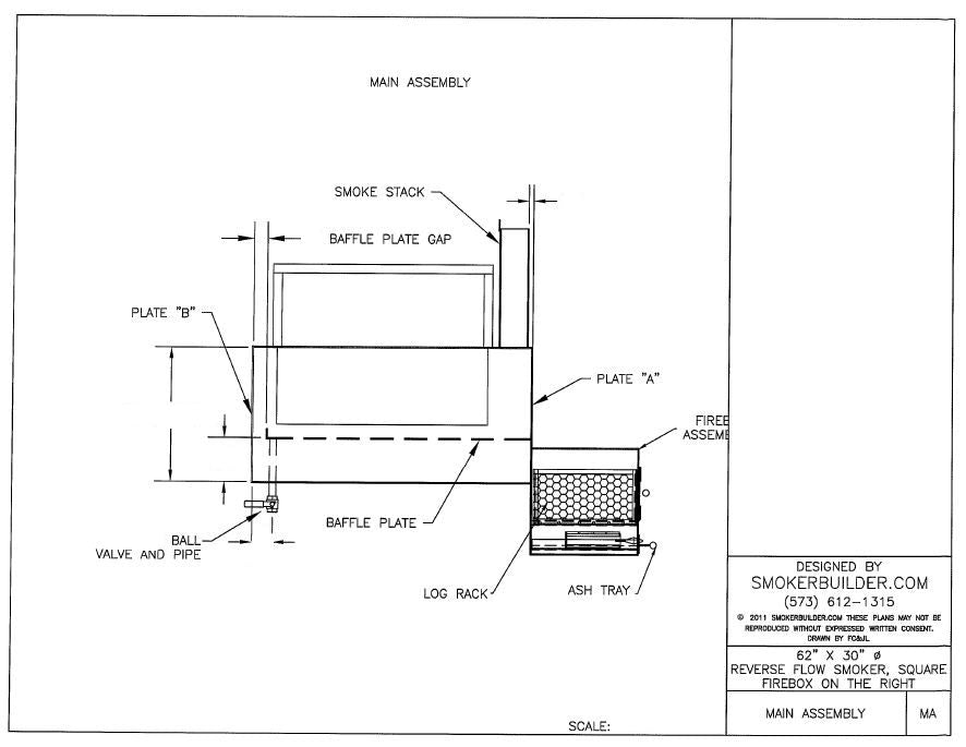
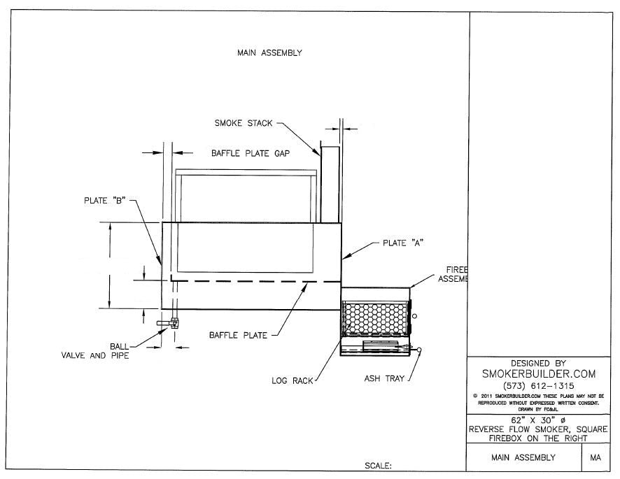
These are pretty good plans if not overly simple. A great starter set
I had to just download the digital version. The book never came, still waiting on it. I’m sure it’s good. Would love to get started on my project.
it was just what i was looking for
I bought the plans for the 250-gallon tank with its trailer and I'm almost finished. It looks excellent and I'll test it soon. The plans are very easy to follow and very clear. I will definitely continue building with more of this plans. Thank you!



