Get the latest updates on new products and upcoming sales
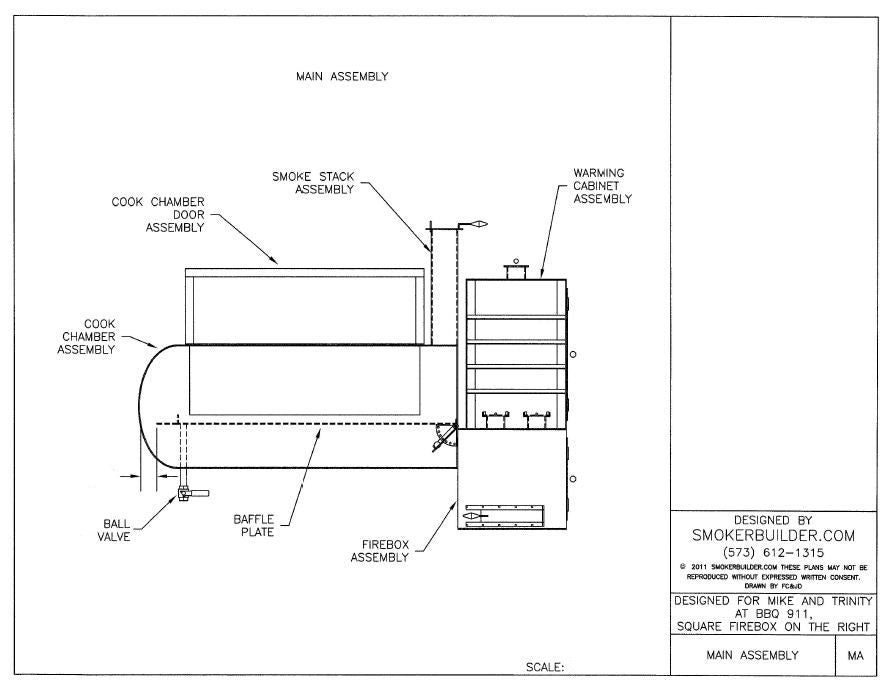
Wont have a chance to start building this until spring. Plans look good. I think this will be a long lasting smoker. I wish the plans started with materials list and cut sheet for all the different plates. Would make it easier for purchasing material and getting all the fab work out of the way instead of bouncing all over the plans to get the dimensions of all the plates. Not a huge problem everything is there just have to search for it.
Got just plans. Did not start yet ...
BR
Janek
Amazing customer service, helped me out right away and gave advice on all questions I asked. Plans look great, and extremely easy to read. Will definitely be back for more plans as I go.
Excellent quality and craftsmanship. Exactly what I was looking for. These are heavy duty and can be easily welded to any curved type door
Would like to print bigger. Went to 11x17 and didn't work very well. Would like rfi's answered. Still waiting on last one. Will start building in a. Couple weeks and drawings look pretty simple and the cad file was nice



