Get the latest updates on new products and upcoming sales
it was just what i was looking for
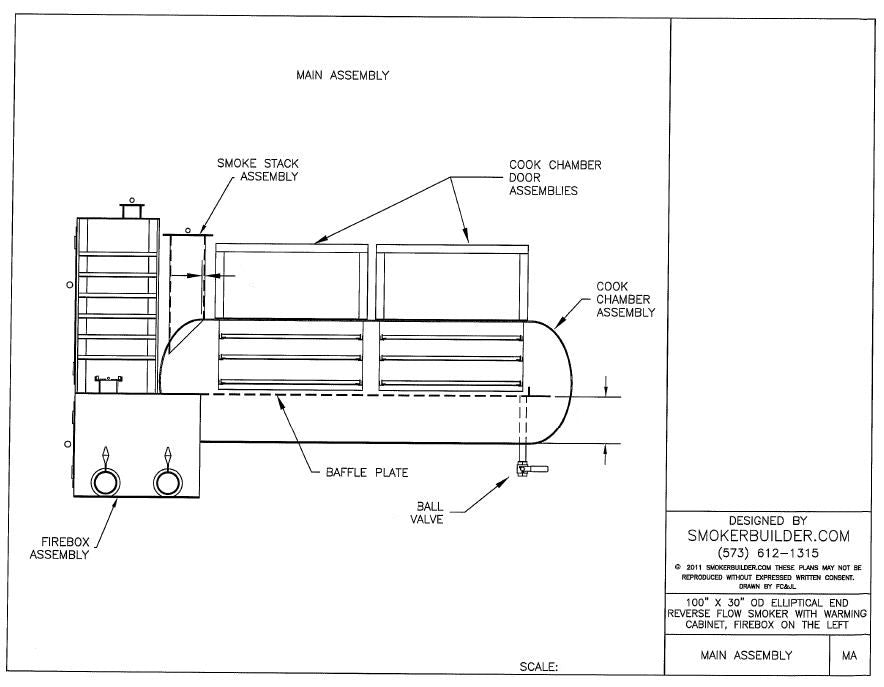
I bought the plans for the 250-gallon tank with its trailer and I'm almost finished. It looks excellent and I'll test it soon. The plans are very easy to follow and very clear. I will definitely continue building with more of this plans. Thank you!
Wont have a chance to start building this until spring. Plans look good. I think this will be a long lasting smoker. I wish the plans started with materials list and cut sheet for all the different plates. Would make it easier for purchasing material and getting all the fab work out of the way instead of bouncing all over the plans to get the dimensions of all the plates. Not a huge problem everything is there just have to search for it.
Got just plans. Did not start yet ...
BR
Janek
Amazing customer service, helped me out right away and gave advice on all questions I asked. Plans look great, and extremely easy to read. Will definitely be back for more plans as I go.



