reverse flow smoker blueprint

20 By 54 Round Firebox Right Side

$79.00
$79.00
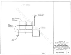
This set of plans is for a 20" diameter hemispherical end propane tank with one endbell cut...
Please hurry! Only 998 left in stock
payment icons
reverse flow smoker blueprint

20 By 54 Round Firebox Right Side

$79.00

20 By 54 Round Firebox Right Side

$79.00

Related Products